
Casa Boemia

SPAŢIU DE BIROURI
DE VÂNZARE


ultracentral
Bd. Mărășești nr. 125

2021
construcţie nouă

D+P+2E
regim de înălţime

230 mp
suprafaţă utilă

3 locuri de parcare
în subteran
Casa Boemia este situată pe Bd. Mărășești, la nr. 125, cu acces direct la stradă, în imediata apropiere a intersecției cu Splaiul Unirii. Construcţia a fost finalizată în anul 2021 și beneficiază de o suprafaţă utilă totală de 230 mp, structurată pe demisol, parter și două etaje. Totodată, imobilul dispune de 3 locuri de parcare situate în subteran.
Se predă finisată la cheie, gata pentru folosinţă. Disponibilitatea pentru vânzare este imediată. Preţul de vânzare este de 495.000 Euro + TVA, compus din: 450.000 Euro + TVA preţul spaţiului de birouri și 45.000 Euro + TVA preţul total al celor 3 locuri de parcare subterane.
Compartimentarea a fost gândită încă de la început pentru a avea funcţionalitate optimă ca spaţiu de birouri, având la dispoziţie o sală de conferinţe, una de relaxare, cinci birouri executive și operaţionale, o cameră pentru arhivă și depozitare, chicinetă și sală de mese, două vestiare și trei grupuri sanitare.

Casa Boemia face parte din proiectul Boemia Apartments, un proiect premiat internaţional cu distincţia Best Architecture Multiple Residence România în cadrul European Property Awards 2019. Eforturile și rezultatele echipei noastre au fost recunoscute astfel în cadrul celui mai important eveniment de real estate, International Property Awards, promotorii excelenţei în piaţa imobiliară internaţională.


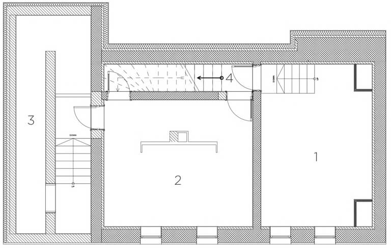
1. SALA DE MESE
19,70 mp
2. SALA DE RELAXARE
20,54 mp
3. ARHIVA
16,11 mp
4. CASA SCĂRII
4,42 mp
SUPRAFATĂ UTILĂ NIVEL
60,77 mp
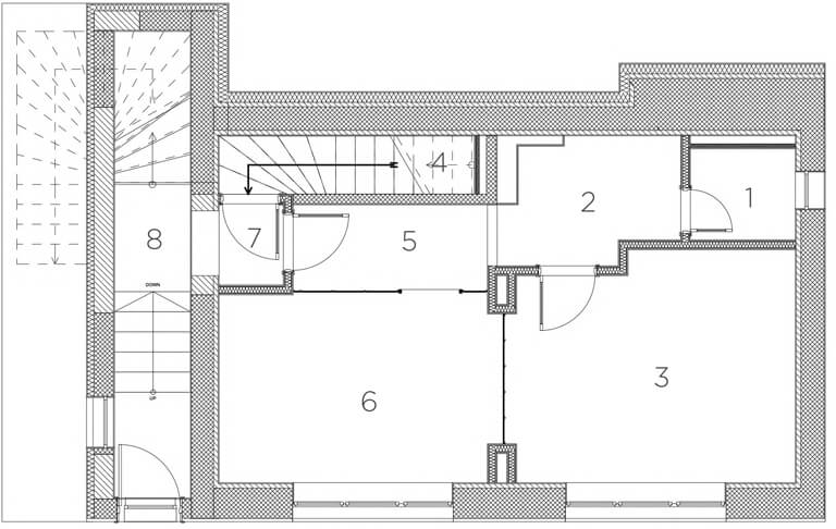
1. GRUP SANITAR
2,59 mp
2. CHICINETĂ
5,28 mp
3. BIROU ADMINISTRATIV
14,72 mp
4. CASA SCĂRII
3,70 mp
5. HOL
3,94 mp
6. SALA DE CONFERINTĂ
11,96 mp
7. HOL ACCES
1,24 mp
8. ACCES + CASA SCĂRII
5,69 mp
SUPRAFATĂ UTILĂ NIVEL
49,12 mp
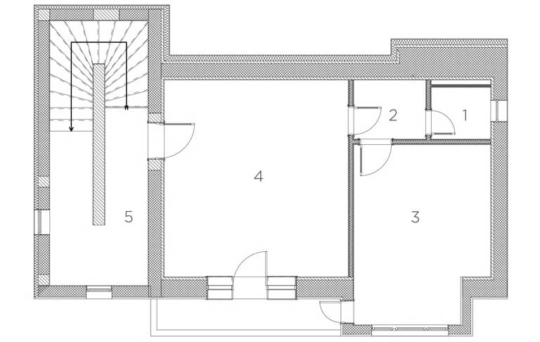
1. GRUP SANITAR
2,59 mp
2. VESTIAR
3,14 mp
3. BIROU EXECUTIV
17,14 mp
4. BIROU OPERATIV
26,73 mp
5. CASA SCĂRII
10,24 mp
SUPRAFATĂ UTILĂ NIVEL
59,84 mp
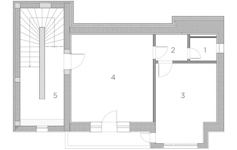
1. GRUP SANITAR
2,59 mp
2. VESTIAR
3,14 mp
3. BIROU EXECUTIV
17,14 mp
4. BIROU OPERATIV
26,73 mp
5. CASA SCĂRII
10,74 mp
SUPRAFATĂ UTILĂ NIVEL
60,34 mp
Contactează-ne pentru mai multe informaţii sau pentru a stabili o întâlnire cu echipa noastră.